Welcome to the Northwoods Veterans Homestead, where we're crafting a haven for our nation's heroes.
Our innovative project, the Veterans Homestead, is more than just a tiny home village; it's a lifeline for veterans seeking stability, support, and a fresh start.
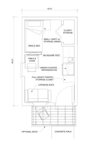
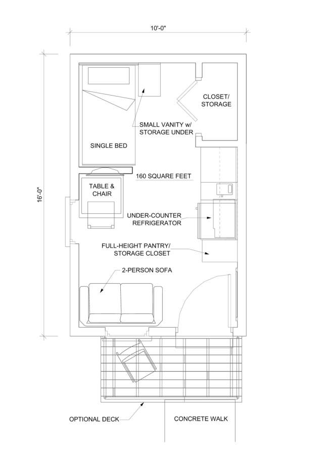
Within the walls of our thoughtfully designed tiny homes, veterans will find a sanctuary that offers more than just shelter—it provides a comfortable living space equipped with all the basic necessities. From a cozy sleeping area to a functional kitchenette, each tiny home is tailored to provide a comfortable and dignified living environment. We understand that every detail matters, which is why our focus is on creating a space where veterans can feel at home and at ease.
Accessibility is a cornerstone of our commitment to inclusivity. That’s why all our tiny homes are ADA-accessible, ensuring that every veteran, regardless of mobility challenges, can enjoy full autonomy and independence.

Tiny Home - Exterior Rendering

Tiny Home - Scale Model
But the Veterans Homestead is more than just a collection of tiny homes; it’s a community dedicated to helping veterans thrive. Our goal goes beyond providing housing—it’s about empowering veterans to assimilate back into society and reclaim their independence.
At the Northwoods Veterans Homestead, we believe that every veteran deserves the opportunity to thrive. Join us in our mission to create a brighter future for those who have bravely served our country. Together, we can build a community where veterans can not only find housing but also find hope, healing, and a path to independence. Welcome home to the Veterans Homestead—where heroes are honored, and dreams take flight.






